Používame cookies

Súbory cookie a ďalšie technológie sledovania používame na zlepšenie vášho zážitku z prehliadania našich webových stránok, na to, aby sme vám zobrazovali prispôsobený obsah a cielené reklamy, na analýzu návštevnosti našich webových stránok a na pochopenie toho, odkiaľ naši návštevníci prichádzajú. Viac info

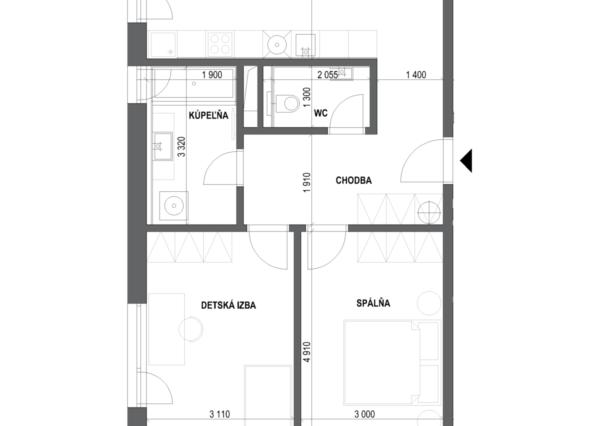
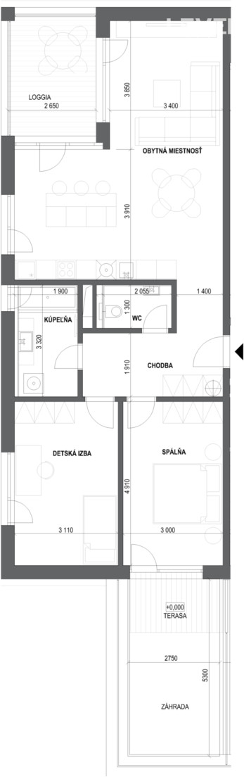
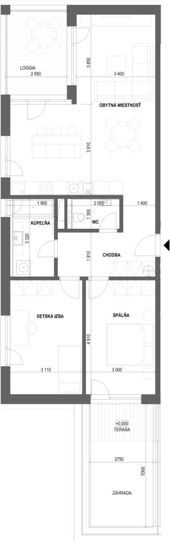
3 izbový byt B.05

3 izbový byt B.05

Zobraziť viac
Predaj
Typ ponuky
3-izbový byt
Typ
Sereď
Lokalita
Celková výmera
Status:
Voľné
Vlastníctvo:
korporácia
Cena pri financovaní 30/40/30:
182990 €
Cena pri financovaní 20/80:
174990 €
Úžitková plocha:
86.69 m2
Zastavaná plocha:
111.45 m2
Stav:
novostavba
Počet izieb:
3
Poschodie:
1

Galéria k nehnuteľnosti

Hypotekárna kalkulačka

Podobné nehnuteľnosti

 
KONTAKTUJTE NÁS