Používame cookies

Súbory cookie a ďalšie technológie sledovania používame na zlepšenie vášho zážitku z prehliadania našich webových stránok, na to, aby sme vám zobrazovali prispôsobený obsah a cielené reklamy, na analýzu návštevnosti našich webových stránok a na pochopenie toho, odkiaľ naši návštevníci prichádzajú. Viac info

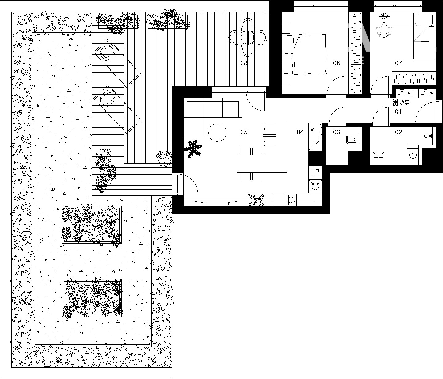
3 izbový byt B-6.1.

3 izbový byt B-6.1.

Zobraziť viac
Predaj
Typ ponuky
3-izbový byt
Typ
Vrbové
Lokalita
Celková výmera
Status:
Voľné
Vlastníctvo:
korporácia
Cena pri financovaní 30/40/30:
143900 €
Cena pri financovaní 20/80:
148900 €
Úžitková plocha:
62.83 m2
Zastavaná plocha:
183.94 m2
Stav:
novostavba
Počet izieb:
3
Balkón:
áno
Poschodie:
6
Plocha balkóna:
121.11 m2

Galéria k nehnuteľnosti

Hypotekárna kalkulačka

Podobné nehnuteľnosti

 
KONTAKTUJTE NÁS