Používame cookies

Súbory cookie a ďalšie technológie sledovania používame na zlepšenie vášho zážitku z prehliadania našich webových stránok, na to, aby sme vám zobrazovali prispôsobený obsah a cielené reklamy, na analýzu návštevnosti našich webových stránok a na pochopenie toho, odkiaľ naši návštevníci prichádzajú. Viac info

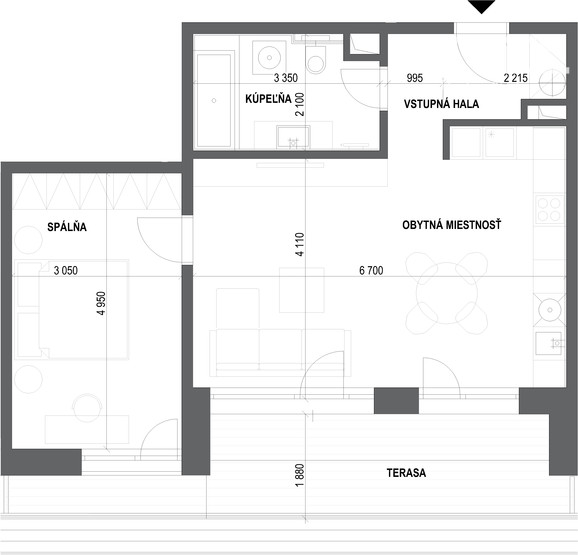
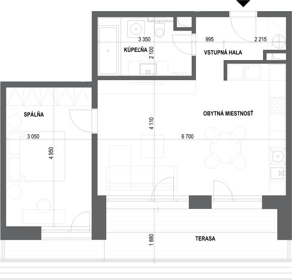
2 izbový byt C.26

2 izbový byt C.26

Zobraziť viac
Predaj
Typ ponuky
2-izbový byt
Typ
Sereď
Lokalita
Celková výmera
Status:
Predané
Vlastníctvo:
korporácia
Cena pri financovaní 30/40/30:
150990 €
Cena pri financovaní 20/80:
145990 €
Úžitková plocha:
55.04 m2
Zastavaná plocha:
72.86 m2
Stav:
novostavba
Počet izieb:
2
Poschodie:
5

Galéria k nehnuteľnosti

Hypotekárna kalkulačka

Podobné nehnuteľnosti

 
KONTAKTUJTE NÁS