Používame cookies

Súbory cookie a ďalšie technológie sledovania používame na zlepšenie vášho zážitku z prehliadania našich webových stránok, na to, aby sme vám zobrazovali prispôsobený obsah a cielené reklamy, na analýzu návštevnosti našich webových stránok a na pochopenie toho, odkiaľ naši návštevníci prichádzajú. Viac info

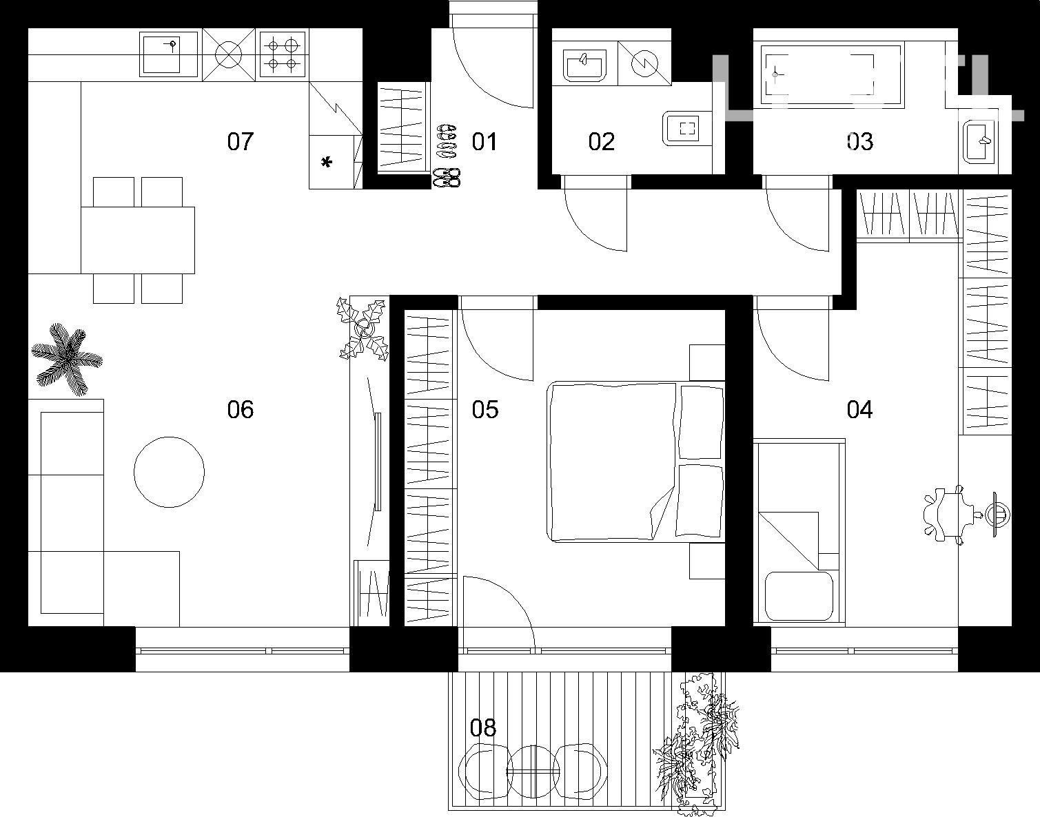
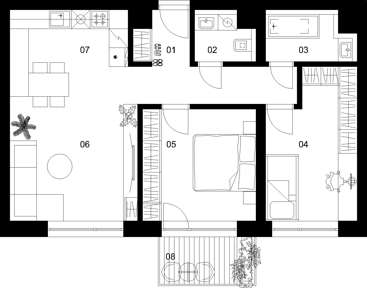
3 izbový byt C-2.1.

3 izbový byt C-2.1.

Zobraziť viac
Predaj
Typ ponuky
3-izbový byt
Typ
Vrbové
Lokalita
Celková výmera
Status:
Voľné
Vlastníctvo:
korporácia
Cena pri financovaní 30/40/30:
117900 €
Cena pri financovaní 20/80:
122900 €
Úžitková plocha:
67.06 m2
Zastavaná plocha:
71.56 m2
Stav:
novostavba
Počet izieb:
3
Balkón:
áno
Poschodie:
2
Plocha balkóna:
4.5 m2

Galéria k nehnuteľnosti

Hypotekárna kalkulačka

Podobné nehnuteľnosti

 
KONTAKTUJTE NÁS