Používame cookies

Súbory cookie a ďalšie technológie sledovania používame na zlepšenie vášho zážitku z prehliadania našich webových stránok, na to, aby sme vám zobrazovali prispôsobený obsah a cielené reklamy, na analýzu návštevnosti našich webových stránok a na pochopenie toho, odkiaľ naši návštevníci prichádzajú. Viac info

Cena v RK

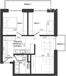
3 izbový byt B13 - 7F

3 izbový byt B13 - 7F

Zobraziť viac
Predaj
Typ ponuky
3-izbový byt
Typ
Strojárenská 1C, Banská Bystrica
Lokalita
Celková výmera
Status:
Voľné
Vlastníctvo:
korporácia
Úžitková plocha:
61.14 m2
Stav:
novostavba
Počet izieb:
3
Poschodie:
7

Galéria k nehnuteľnosti

Naši realitní makléri sú tu pre Vás

Radi Vám poradíme

Podobné nehnuteľnosti

 
KONTAKTUJTE NÁS