Používame cookies

Súbory cookie a ďalšie technológie sledovania používame na zlepšenie vášho zážitku z prehliadania našich webových stránok, na to, aby sme vám zobrazovali prispôsobený obsah a cielené reklamy, na analýzu návštevnosti našich webových stránok a na pochopenie toho, odkiaľ naši návštevníci prichádzajú. Viac info

169 990 €

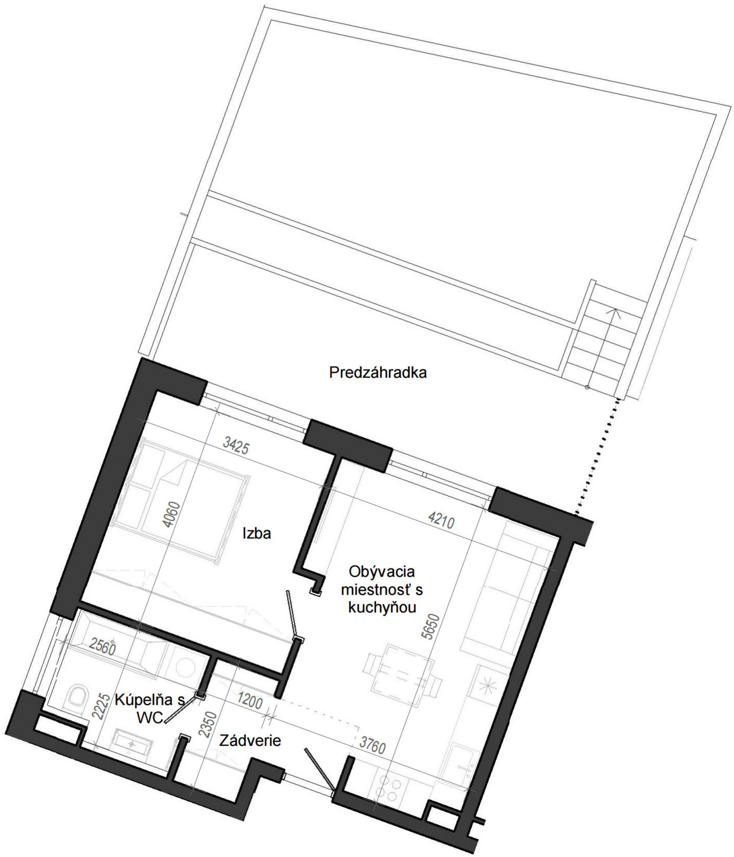
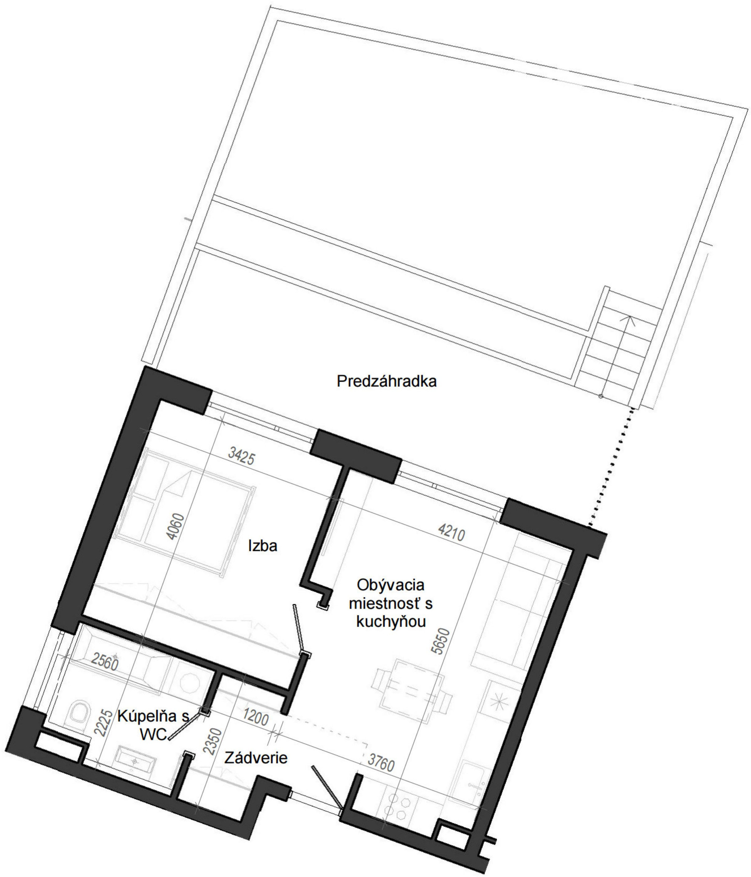
0 izbový byt B14 - 1B-OP

0 izbový byt B14 - 1B-OP

Zobraziť viac
Predaj
Typ ponuky
Výstavba bytov
Typ
Strojárenská 1C, Banská Bystrica
Lokalita
Celková výmera
Status:
Voľné
Vlastníctvo:
korporácia
Cena pri financovaní 30/40/30:
189990 €
Cena pri financovaní 20/80:
179990 €
Úžitková plocha:
44.79 m2
Stav:
novostavba

Galéria k nehnuteľnosti

Hypotekárna kalkulačka

Naši realitní makléri sú tu pre Vás

Radi Vám poradíme

Podobné nehnuteľnosti

 
KONTAKTUJTE NÁS