Používame cookies

Súbory cookie a ďalšie technológie sledovania používame na zlepšenie vášho zážitku z prehliadania našich webových stránok, na to, aby sme vám zobrazovali prispôsobený obsah a cielené reklamy, na analýzu návštevnosti našich webových stránok a na pochopenie toho, odkiaľ naši návštevníci prichádzajú. Viac info

191 990 €

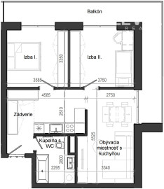
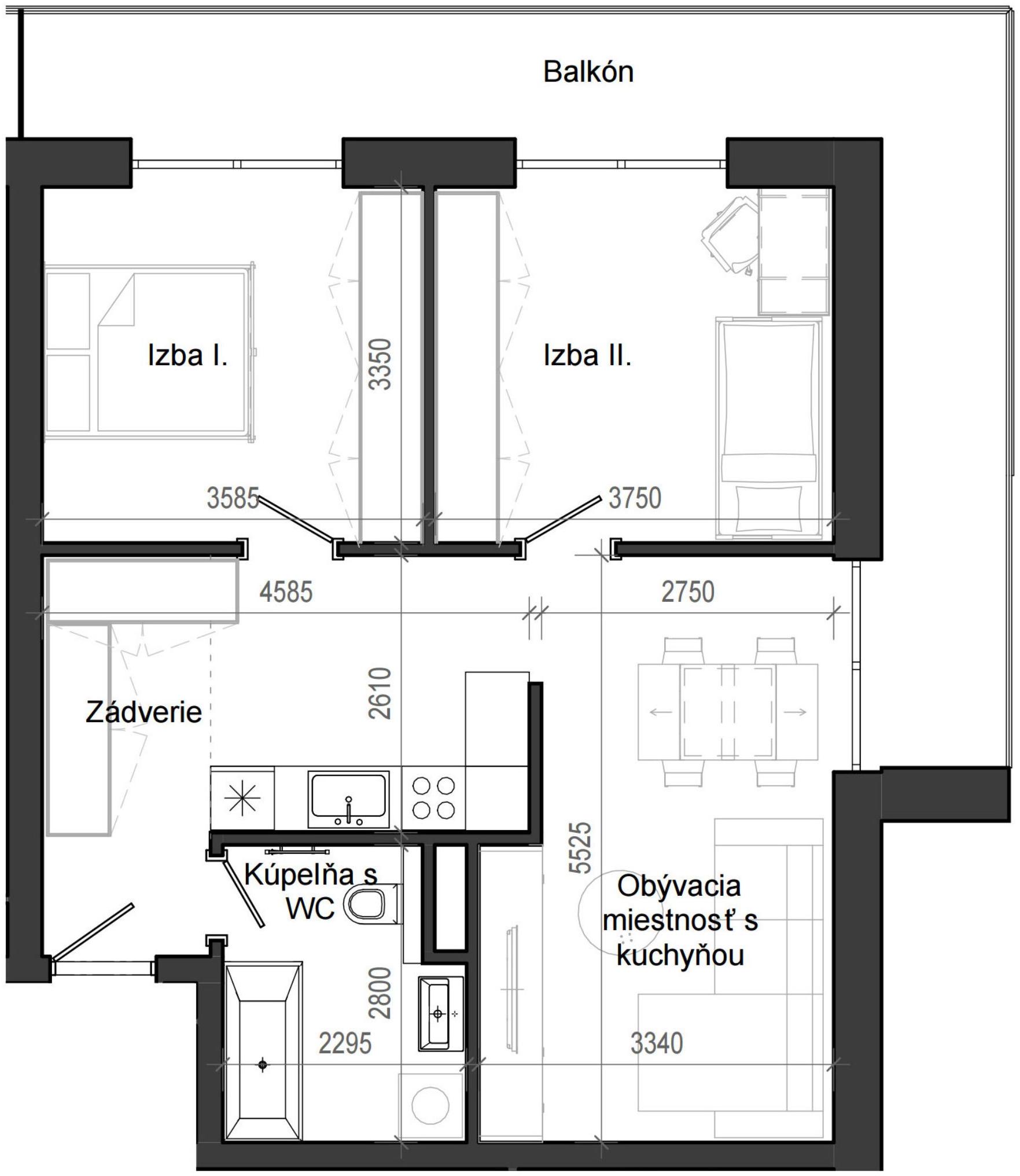
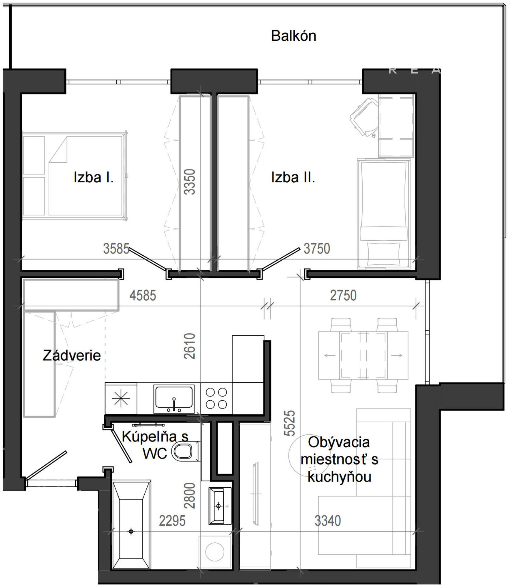
3 izbový byt B13 - 3F

3 izbový byt B13 - 3F

Zobraziť viac
Predaj
Typ ponuky
3-izbový byt
Typ
Strojárenská 1C, Banská Bystrica
Lokalita
Celková výmera
Status:
Voľné
Vlastníctvo:
korporácia
Cena pri financovaní 30/40/30:
214990 €
Cena pri financovaní 20/80:
202990 €
Úžitková plocha:
61.14 m2
Stav:
novostavba
Počet izieb:
3
Poschodie:
3

Galéria k nehnuteľnosti

Hypotekárna kalkulačka

Naši realitní makléri sú tu pre Vás

Radi Vám poradíme

Podobné nehnuteľnosti

 
KONTAKTUJTE NÁS